产品详情

工作原理 / working principle
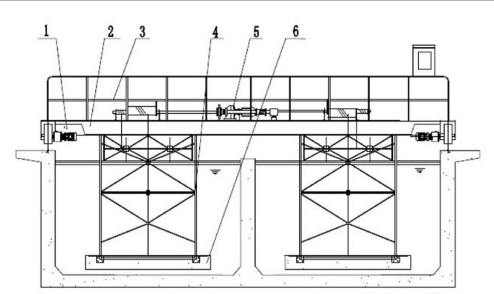
该设备由护栏、刮泥桁架、刮泥耙及导轨、刮泥桥、行走轮、轨道、提升机构、驱动机构等组成。
刮泥机构在不刮泥回程时刮泥耙全部抬起,当回到刮泥的起始位置时,刮泥耙落下,这样周而复始的工作,该设备为同向流刮泥和刮渣,刮起泥耙靠卷扬机构升降,刮浮渣耙靠电动推杆升降,以达到刮起泥渣的目的。
结构示意图 / Schematic


产品特点 / Features
- 结构简单,重量轻
- 维护简单方便,运行费用低
- 新型的传动机构,不用联轴器,结构紧凑
公司实力 / Features



发布日期:2025-07-11
浏览次数:92